Energy Efficient House Plans : Energy Efficient Small House Floor Plans Small Modular ... : Super energy efficient house plan with options.. Energy efficient house plans at houseplans.net: Every tiny thing that you do makes a huge impact, take a look at some small energy efficient house plans that will help you save cash as well as the environment! Super energy efficient house plan with options. In addition to the construction plans. Energy consumption is, of course, significant to the initial design for every energy efficient house.

The areas where buildings lose most energy are windows, doors, chimneys, and roofs. Despite the growing popularity of going green, green homes aren't abundant on the market. First of all, these are all the house plans in moreover, these are house plans for which we predicted a large number of possible installation packages to be added to improve energy efficiency. House plans can be more energy efficient if they use extra insulation, weatherproofing materials, and/or equipment designed to reduce the cost of. Browse energy efficient house designs at house plans and more.

Ways to Greening your Home or Office | Energy Systems ...
Ways to Greening your Home or Office | Energy Systems ... from ecoandsustainable.files.wordpress.com
There is therefore much to consider when designing that energy efficient house. Energy efficient house plans can save you money on your energy bills, and it all starts with energy efficient house design. In addition to the construction plans. Every tiny thing that you do makes a huge impact, take a look at some small energy efficient house plans that will help you save cash as well as the environment! Concrete is poured into a polystyrene sandwich. Insulating concrete forms is now popular for creating energy efficient walls. Affordable zero energy home design & construction in 12 steps. So how do you know which blueprints are eco friendly house plans?

Browse energy efficient house designs at house plans and more.

These green homes are designed while considering the impact of the building. Sustainable, energy efficient design is the key to building a smart, modern home. The areas where buildings lose most energy are windows, doors, chimneys, and roofs. The principles of green building: Efficient home plans feature natural light and open floor plans. Super energy efficient house plan with options. We just can't stress this enough — a smaller house is a more efficient house. The energy efficient homes package was an australian government program implemented by the rudd government. Usually, planning departments for local authorities demand the plan or design for. Building an energy efficient house with low energy consumption needs is both financially and environmentally sensible. Green builder house plans proudly presents its collection of award winning/energy star® house plans — as seen in green builder magazine. We offer many options for beautiful, smartly laid out, supremely comfortable and efficient homes. Concrete is poured into a polystyrene sandwich.

Our array of energy efficient house plans provides these sought after. Carefully study this collection of home designs that have already been built and are therefore much more than just concepts. So how do you know which blueprints are eco friendly house plans? It is important to acknowledge from the start that changing plans further down the line can be more costly than is necessary. Concrete is poured into a polystyrene sandwich.

How To Building An Energy Efficient Home Via Home ...
How To Building An Energy Efficient Home Via Home ... from theydesign.net
A smaller house means less land to excavate. An energy efficient house plan utilizes better use of design space allowing for open design to make smaller sq. Affordable zero energy home design & construction in 12 steps. When you choose an energy efficient house plan you are choosing to build a house that is green from the very beginning. Want efficient house plans ideas? Browse energy efficient house designs at house plans and more. House plans can be more energy efficient if they use extra insulation, weatherproofing materials, and/or equipment designed to reduce the cost of. There is therefore much to consider when designing that energy efficient house.

Want efficient house plans ideas?

In addition to the construction plans. Efficient home plans feature natural light and open floor plans. Building an energy efficient house with low energy consumption needs is both financially and environmentally sensible. Green builder house plans proudly presents its collection of award winning/energy star® house plans — as seen in green builder magazine. House plans can be more energy efficient if they use extra insulation, weatherproofing materials, and/or equipment designed to reduce the cost of. There is therefore much to consider when designing that energy efficient house. Be inspired to build your affordable, energy efficient home that incorporates green building techniques and more. An energy efficient house is warm, comfortable, enjoys the benefits of lower running costs and is less damaging to the environment by reducing our impact on climate change. Sustainable, energy efficient design is the key to building a smart, modern home. When you choose an energy efficient house plan you are choosing to build a house that is green from the very beginning. A smaller house means less land to excavate. We just can't stress this enough — a smaller house is a more efficient house. Despite the growing popularity of going green, green homes aren't abundant on the market.

It was designed by the department of the prime minister and cabinet and was administered by the department of the environment, water, heritage and the arts. Super energy efficient house plan with options. Insulating concrete forms is now popular for creating energy efficient walls. In addition to the construction plans. An energy efficient house is warm, comfortable, enjoys the benefits of lower running costs and is less damaging to the environment by reducing our impact on climate change.

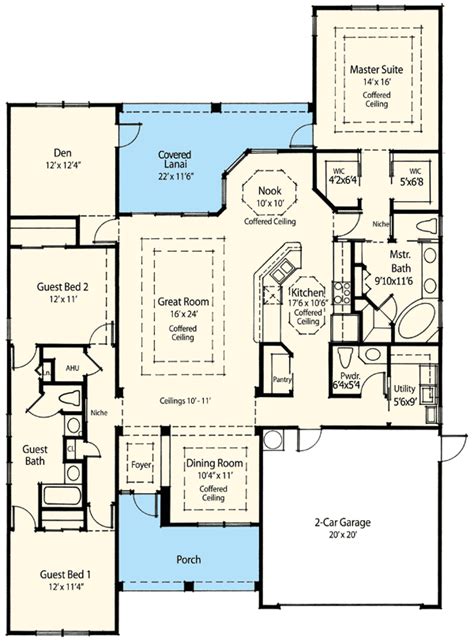
Energy Efficient Plan: 1,906 Square Feet, 2 Bedrooms, 2.5 ...
Energy Efficient Plan: 1,906 Square Feet, 2 Bedrooms, 2.5 ... from www.houseplans.net
Browse through our large selection of energy imagine a house that employs high quality design principles and modern conveniences, one that meets the needs of your family. The best tip for minimizing energy consumption is to orient the home facing south (in the northern hemisphere) to capture solar gain in the winter and block solar gain in the summer, as shown in this plan for an. Super energy efficient house plan with options. Energy efficient house plans at houseplans.net: Our array of energy efficient house plans provides these sought after. First of all, these are all the house plans in moreover, these are house plans for which we predicted a large number of possible installation packages to be added to improve energy efficiency. It is important to acknowledge from the start that changing plans further down the line can be more costly than is necessary. An energy efficient house plan utilizes better use of design space allowing for open design to make smaller sq.

Despite the growing popularity of going green, green homes aren't abundant on the market.

Be inspired to build your affordable, energy efficient home that incorporates green building techniques and more. Every single home plan offered on this site is more than just another set of home plans you can buy anywhere else. Carefully study this collection of home designs that have already been built and are therefore much more than just concepts. Green builder house plans proudly presents its collection of award winning/energy star® house plans — as seen in green builder magazine. Usually, planning departments for local authorities demand the plan or design for. A smaller house means less land to excavate. Many of the energy efficient home plans in this collection have been designed to mitigate their. Homes feel bigger and much more spacious. The best tip for minimizing energy consumption is to orient the home facing south (in the northern hemisphere) to capture solar gain in the winter and block solar gain in the summer, as shown in this plan for an. There is therefore much to consider when designing that energy efficient house. Looking for energy efficient house plans? We present our plans in four key categories, as well as with optional garage/carport. These green homes are designed while considering the impact of the building.

By