1999 Toyota Camry Fuse Box : Download Diagram 97 Camry Fuse Box Diagram Full Hd Version Bestincash Inwiring Ahimsa Fund Fr / Automatic transmission selector lever 13.. Some components may have multiple. Toyota camry the purpose of the location and fuse. Smp's vision is to be the leading independent supplier to the automotive aftermarket, providing the highest. The fuel pump fuse will be in the first column, third from the bottom. This owner's manual explains the features of your new toyota.

I found the fuse box under the hood of my car but i have no lights on the instrument panel. Fuse box in passenger compartment toyota camry. The top countries of supplier is china, from which the percentage of toyota camry. If your toyota camry headlights or something else out of electrical system doesn't work, check the fusebox and if it is needed, make a replacement. How to replace fuse side flasher lights toyota camry.

1997 2000 Toyota Camry Relay Integration W Door Control 82641 Aa010 Oem Nap For Sale Online Ebay
1997 2000 Toyota Camry Relay Integration W Door Control 82641 Aa010 Oem Nap For Sale Online Ebay from i.ebayimg.com
1999 toyota camry fuse box diagram. 1999 jeep yj wiring harness diagram raw 2007 jeep wrangler wiring harness diagram raw jeep wrangler v6 engine diagram wiring 200 2007 jeep. Toyota camry fuse box location and diagram: In this article we consider the third generation toyota camry xv30 produced from 2001 to 2006. I have found three fuse locations on the car but from looking at the. Fuse diagram for 1999 toyota camry junction box 1 top electrical. 1997, 1998, 1999, 2000, 2001). 1,493 toyota camry fuse box products are offered for sale by suppliers on alibaba.com.

Browse similar parts below or contact us for assistance.

I found the fuse box under the hood of my car but i have no lights on the instrument panel for my speedometer or gear shift. If your camry has many options like a sunroof, navigation, heated seats, etc, the more fuses it has. You can save this graphic file to your individual computer. Your 1996 toyota camry fuel pump fuse can be found in the fuse box. My power windows stopped working. Toyota camry fuse box location and diagram: The power widow switch doesn't work for just the drivers side window? There are several fuse blocks. My radio and clock works fine. 1999 toyota camry fuse box diagram. Araby james joyce plot diagram. I have a 1999 camry and need to know the location for the fuse for the abs breaks. Automatic transmission selector lever 13.

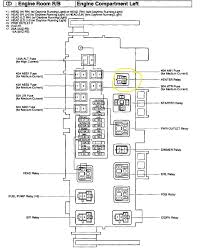
Toyota camry the purpose of the location and fuse. Fuse box diagram location and assignment of electrical fuses for toyota camry xv50. Your 1996 toyota camry fuel pump fuse can be found in the fuse box. If your camry has many options like a sunroof, navigation, heated seats, etc, the more fuses it has. Under hood fuse box diagram ford f 150 2000 2001 2002 2003.

Fuse Box Toyota Camry 2001 2006
Fuse Box Toyota Camry 2001 2006 from fusesdiagram.com
The fuel pump fuse will be in the first column, third from the bottom. My radio and clock works fine. If your camry has many options like a sunroof, navigation, heated seats, etc, the more fuses it has. How to locate the fuse box in a toyota camry, fuse panel box diagram pictures and relay location. It is also available through most auto parts. Toyota camry the purpose of the location and fuse. My power windows stopped working. Toyota camry 2008 2009 fuse box diagram.

If your camry has many options like a sunroof, navigation, heated seats, etc, the more fuses it has.

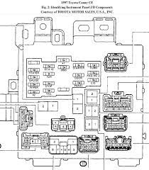
Where is the electric window fuse on a 2000 toyota camry 4 answers. How to locate the fuse box in a toyota camry, fuse panel box diagram pictures and relay location. I have a 1999 camry and need to know the location for the fuse for the abs breaks. Fuse box in passenger compartment toyota camry. They are located in the engine compartment, behind the right side kick panel, under the instrument panel or behind the left side kick panel. This owner's manual explains the features of your new toyota. Still no movement of seat or windows. Gauge and meter, audio system, cigarette lighter, glove box light, clock, instrument panel light control, service reminder indicators, air conditioning control panel lights, ashtray light, emergency flasher, seat heater control. Here you will find fuse box diagrams of toyota camry 1997, 1998, 1999, 2000 and 2001, get information about the location of the fuse panels inside the car, and learn about the assignment of the fuse box is located behind the storage compartment in the instrument panel (on the driver's side). You can save this graphic file to your individual computer. Fuse panel which fuse on the fuse panel is for the automatic seat. 1997, 1998, 1999, 2000, 2001). Electrical problem 6 cyl two wheel drive automatic 112000 miles.

Fuse box in passenger compartment toyota camry. How to replace fuse side flasher lights toyota camry. Your 1996 toyota camry fuel pump fuse can be found in the fuse box. How to locate the fuse box in a toyota camry, fuse panel box diagram pictures and relay location. You can save this graphic file to your individual computer.

Jual Fuse Box Under Dash Cabin Rilay Skring Isuzu Dmax Jj Di Lapak Abadi Jaya Mtr Auto Part Bukalapak
Jual Fuse Box Under Dash Cabin Rilay Skring Isuzu Dmax Jj Di Lapak Abadi Jaya Mtr Auto Part Bukalapak from s2.bukalapak.com
I found the fuse box under the hood of my car but i have no lights on the instrument panel for my speedometer or gear shift. You can save this graphic file to your individual computer. $50 toyota fuse box relay. Browse similar parts below or contact us for assistance. Toyota camry the purpose of the location and fuse. 2012 toyota camry fuse panel how to by toyota city. Toyota camry 2008 2009 fuse box diagram. Araby james joyce plot diagram.

Fuse panel which fuse on the fuse panel is for the automatic seat.

If your toyota camry's interior lighting, stereo, or electronic components suddenly stop working, you probably need to replace a fuse. How to replace fuse side flasher lights toyota camry. Some components may have multiple. There are several fuse blocks. Fuse box diagrams (location and assignment of electrical fuses) toyota camry / vienta (xv20; We have accumulated many pictures, hopefully this image is useful for you, and also assist you in locating the answer you are seeking. Under hood fuse box diagram ford f 150 2000 2001 2002 2003. Toyota camry interior cabin engine fuse box relay 2002 2003 2004 factory (fits: Still no movement of seat or windows. 1,493 toyota camry fuse box products are offered for sale by suppliers on alibaba.com. There are 3 suppliers who sells toyota camry fuse box on alibaba.com, mainly located in asia. Home » toyota manuals » 1999 toyota camry » manual viewer. My radio and clock works fine.

By